水泵采购网

化工泵、潜污泵、化工泵采购网、潜水泵、轴流泵、
水泵采购网
产品分类
#
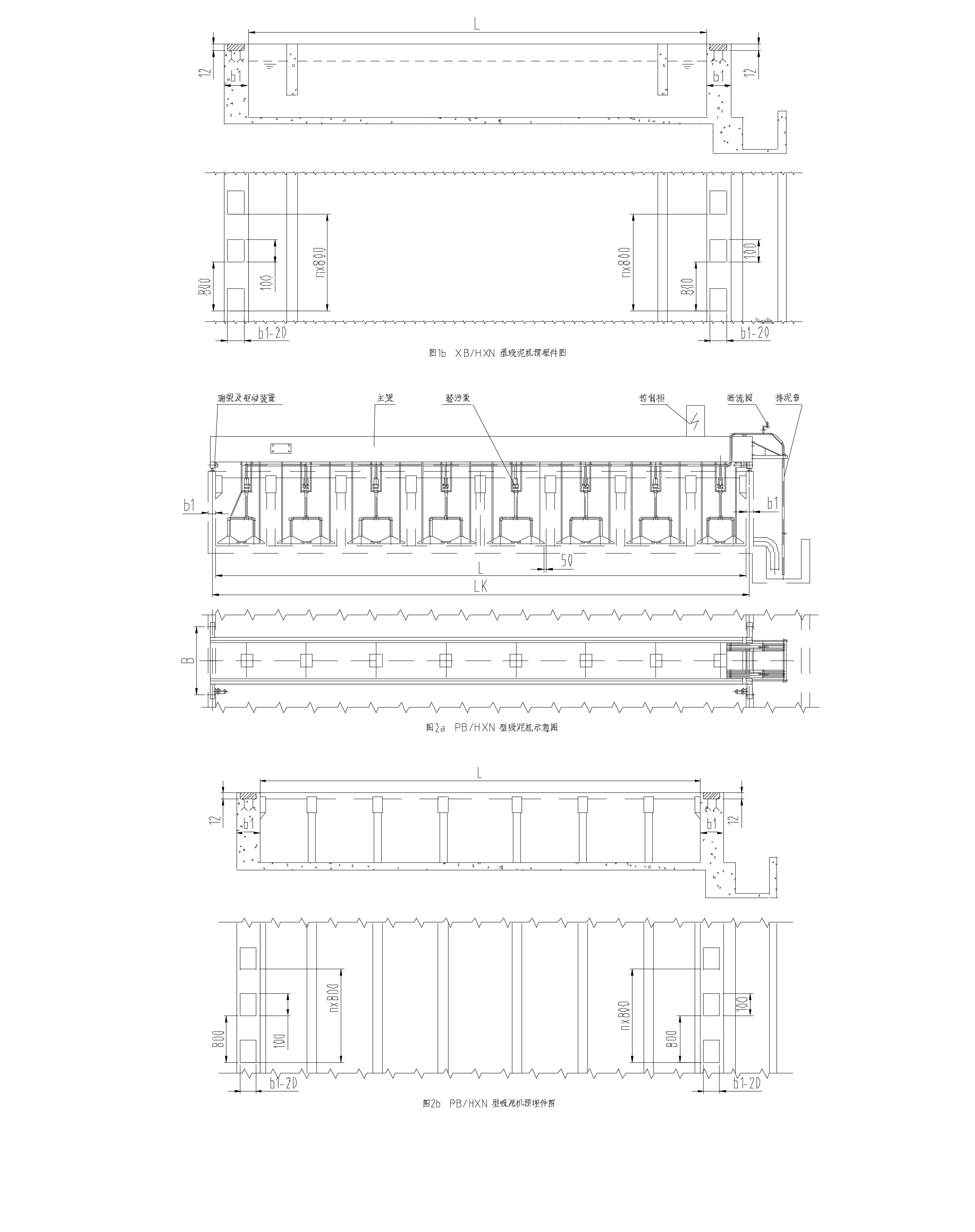
B/HXN 型给水沉淀池泵/虹吸式吸泥机
B/HXN 型给水沉淀池泵/虹吸式吸泥机
B/HXN 型给水沉淀池泵/虹吸式吸泥机
B/HXN 型给水沉淀池泵/虹吸式吸泥机
B/HXN 型给水沉淀池泵/虹吸式吸泥机

B/HXN 型给水沉淀池泵/虹吸式吸泥机

【专用名称】沉淀池

价格:

议价

品牌:

盛太水环

备注:

盛太水环

  • 厂家名称:上海盛太水环机械设备有限公司
  • 经营模式:生产厂家(已认证)
  • 联系人   :刘永新
  • 联系方式:139**** **** 登录可见
  • 联系时请一定说明在找泵网看到
手机扫码关注店长
关闭

商品已成功添加到采购单!

采购单共有0个商品

去结算 泵城中心 关闭窗口